VPM 240 M2
VPM 240 M2 er et ventilasjonsaggregat med varmegjenvinning via en reversibel varmepumpe, som både kan kjøle og varme tilluften. En integrert heatpipe bidrar til varmegjenvinningen og øker aggregatets effektivitet – noe som gir en god COP.
VPM 240 M2 benyttes til ventilasjon av bygninger hvor det stilles høye krav til luftkvalitet – for eksempel rom med forurenset eller fuktig luft som ventileres separat via det sentrale ventilasjonssystemet. Det kan være restaurantkjøkken, toaletter og garderober. Avtrekksluften og tilluften er fullstendig adskilt, noe som forhindrer overføring av partikler.
Takket være den integrerte varmepumpen er VPM 240 M2 en kompakt løsning som minimerer plassbehovet i bygget. Samtidig elimineres behovet for en ekstern kjøleenhet som ellers måtte plasseres på taket eller bakken.
Luftmengde (se prosjekteringsdata for SEL/SFP verdi)
Min : 800 m3/hMax : 2650 m3/h
Motor og motorstyring
|
KapasitetMax Pa kapasitet av standardaggregat, Pt,ext som funksjon av qv,med hensyn til SFP-Verdiene. SFP-verdier iht. EN 13053 er for standardaggregat med ISO ePM10 >60% (M5) og ISO ePM1 50% (F7) filtre og uten varmebatteri. * Lufthastighet over fordamperoverflaten måles ved meter per sekund. OBS! SFP-verdiene måles og oppgis som en totalverdi for begge viftene. |
![]() |
Varmeeffekt COP (luft/luft)Varmeeffektfaktor COP [-] tilluft som funksjon av utetemperatur [°C] og luftmengde qv [m3/h] I henhold til EN14511, avtrekk = 21 °C |
![]() |
Varme-effektVarme-effekten er basert på en avtrekkstemperatur på 20 °C, og nominell luftmengde på 2400 m3/h.
|
![]() |
Kjøle-effektKjøle-effekten er basert på en avtrekkstemperatur på 25 °C/50% RH, og nominell luftmengde på 2400 m3/h.
|
![]() |
LyddataLyddata er for qv = 2400 m3/h og Pt ext = 250 Pa i henhold til EN 9614-2 for overflate og EN 5136 for kanaler. Lydeffektnivået LWA faller med fallende luftmengde og fallende mottrykk. Lydeffektnivået LpA i en gitt avstand vil være avhengig av de akustiske forholdene på installasjonsstedet. |
![]() |
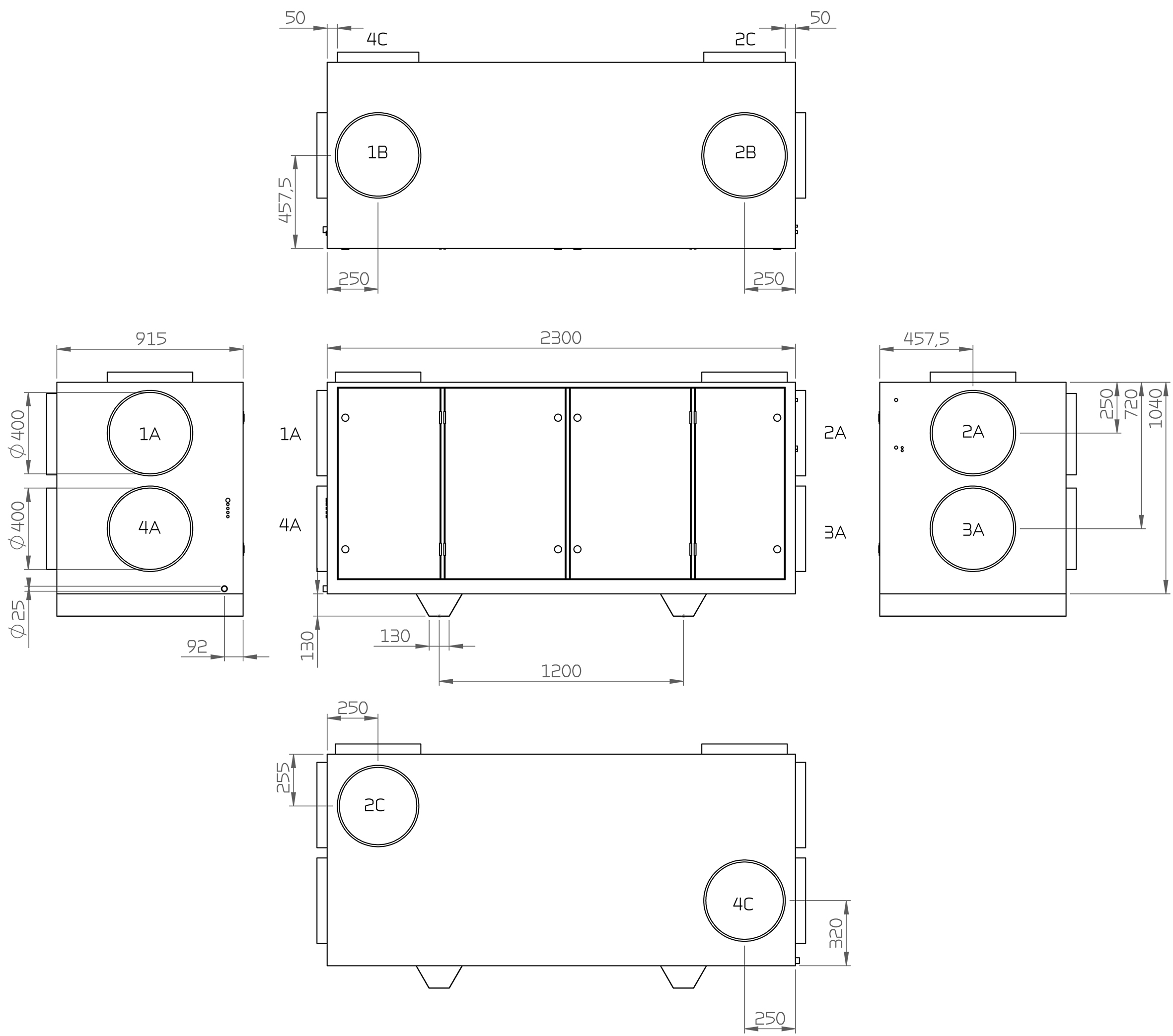
Målskisse for VPM 240 M2 (venstre):
Alle mål er oppgitt i mm. 1: Uteluft A. Plassering i gavl
Målskisse for VPM 240 M2 (høyre):
Alle mål er oppgitt i mm. 1: Uteluft A. Plassering i gavl
|
CTS602i styringen er en avansert styring for næringsanlegg med mange innstillingsmuligheter. Styringen leveres fra fabrikken med en grunninnstilling, som kan tilpasses driftsmessige ønsker og krav for å oppnå en optimal drift og utnyttelse av aggregatet. HMI Touch panelet gir god oversikt over aggregatets aktuelle drift, og har en menystruktur som er lett å finne frem i for både bruker og installatør. Det er mulig å velge mellom 2 forskjellige forsidebilder til hovedskjermen. Ekstern kommunikasjon
Ytterligere informasjon om alle funksjonene finnes i aggregatets Software- og Montasjeveiledning.
|
OBS! God ledig plass foran aggregatet anbefales. Ved oppstilling av aggregatet bør det alltid tas hensyn til fremtidig service og vedlikehold. Det skal være enkelt å bytte ut filter, og det skal det være mulig å f.eks. fjerne veksleren, bytte vifter eller andre komponenter. Det må være plass til å enkelt kunne rengjøre aggregatet. Ved rengjøring av aggregatet kan vann renne ut av rengjørings- og kondensavløp. Det skal derfor være plass til montering av vannlås ved kondensavløp og ev stengekraner ved rengjøring av avløp. OBS! Det er viktig at enheten er satt opp i vater for å få et riktig avløp fra kondensbakken.
OBS! Aggregatet kjører med lavt støy- og vibrasjonsnivå, men det bør allikevel tas hensyn for eventuelle vibrasjoner som kan forplante seg fra aggregatet og ut i enkelte bygningsdeler. For å adskille aggregatet fra underlaget, anbefales det å montere vibrasjonsdempere under aggregatet. Til øvrige bygningsdeler og fast inventar skal det være min. 10 mm avstand.
KondensavløpOBS! Det skal etableres en vannlås i forbindelse med kondensavløpet for å sikre at kondensvannet kan ledes bort |









